Cliente: SAMARCO MINERAÇÃO S.A.

Contratante: SANEHATEM CONSULTORIA E PROJETOS

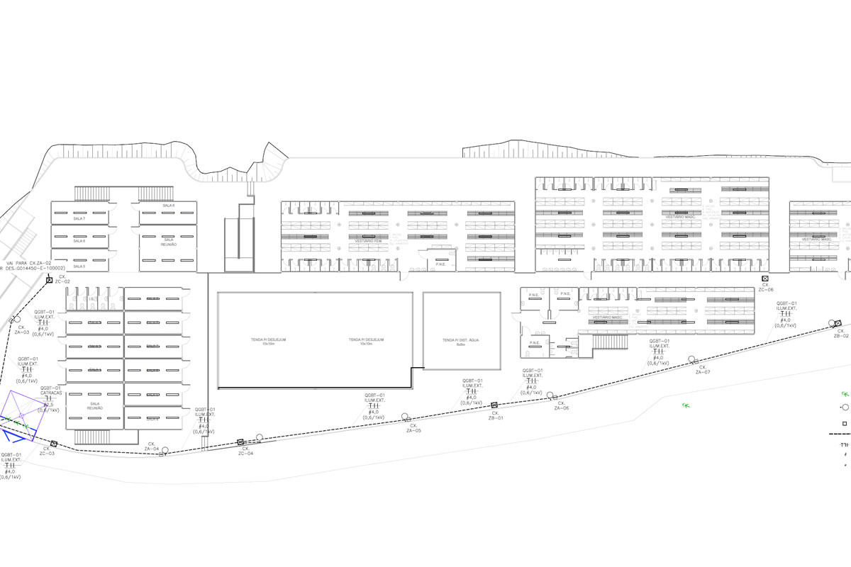
Serviço: Projeto Refeitório M3

Local: Mina de Germano – Mariana / MG

Area Projeto: 3.149,89 m2

Escopo: 

            Projeto Elétrico

            Projeto Telecomunicações - Cabeamento Estruturado

            Projeto Sonorização

            Projeto Sistema de Proteção Contra Descargas Atmosféricas